El 28 de agosto de 2020 se firmó la adjudicación de la obra de la ruta Provincial 13 entre la Ruta Nacional 11 (María Sara) y Cote Lai, más los accesos a Cote Lai y Colonia Baranda. Los 45 kilómetros son —junto con la RP9 hasta Las Hacheras— la obra de infraestructura más trascendente de estos últimos 20 años en rutas provinciales, conectando no solamente a Cote Lai (1323 habitantes en 2010) y Colonia Baranda (336 en 2010), sino que deja a Charadai (1519 hab.) a 32 km del pavimento y a La Sabana (242 hab.) a 58 km.
El proyecto de pavimento se realiza en general junto a la traza actual —a excepción de un desvío sobre el acceso a Baranda— hasta las cercanías del puente sobre el arroyo Palometa. Desde allí desvía hacia el sur a fin de evitar la construcción de otro puente sobre dicho curso de agua. El recorrido imita en línea recta la margen sur del arroyo hasta alcanzar la altura de Cote Lai, donde vuelve a unirse con la traza actual de la RP13 un kilómetro después del pueblo. En el siguiente mapa la traza a pavimentar está en rojo.

La ruta 13 es uno de los ejes troncales de la Provincia del Chaco, recorriendo la zona Sur a una distancia de entre 40 y 50 kilómetros del paralelo 28° que divide el Chaco de la Provincia de Santa Fe. Une la RN11 al sur de Resistencia con Villa Ángela; al norte de Villa Ángela reaparece conectando la RN95 con la RN89 en General Pinedo, este tramo fue pavimentado en 2015. Copia en parte el recorrido del Ferrocarril Santa Fe que sirvió como base para la explotación de la compañía La Forestal. Los pueblos que se formaron a lo largo de ella tuvieron un súbito desarrollo al punto que La Sabana llegó a disputar la capitalía a Resistencia a fines del siglo XIX, pero una vez agotada la riqueza forestal se redujeron a parajes de actividad ganadera. Hasta 2005 la ruta era de jurisdicción nacional, y todavía se observa en algunos mapas la vieja referencia de RN89.
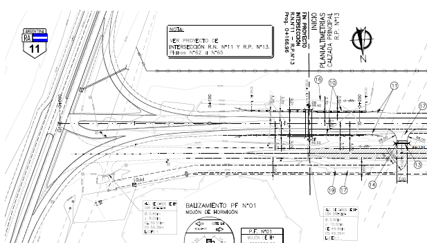
El proyecto inicia en el Paraje María Sara, sector netamente rural mayormente conocido por tener el vertedero de basura de la Ciudad de Resistencia. Esta intersección será del tipo triángulo con 4 calzadas distintas, además se dividirá con un cordón central la RN11 en esta sección (esquema que se ve en el cruce de la RN16 y acceso a La Escondida).

Inicialmente al sur de la traza actual, queda al norte de la misma a casi 6 km del inicio. Luego rectifica la curva y contracurva antes del puente sobre el arroyo El Saladillo, de manera que quede una sola curva antes del puente nuevo. Sobre este puente se encontraban trabajando a mediados de noviembre de 2020.

Un kilómetro antes de Colonia Baranda abandona la traza actual por un camino que bordea el sector sur de la urbanización. Dicho tramo dista 400 metros del cruce entre la ruta actual, y la calle del conocido hospital geriátrico de la localidad. Si bien hay algunas calles en esta porción donde se construirá la nueva calle, su urbanización es incipiente comparándola contra la ubicada al norte de la traza actual.
La traza se reencuentra con la original 2 km después de Baranda. 6 km después se encuentra el nuevo puente sobre el arroyo Palometa. Sigue así por 1 kilómetro más, punto en el que las trazas se separan abruptamente. Primero se desvía hacia el sudoeste para luego continuar con rumbo oeste – este, y unos 8 kilómetros antes de Cote Lai vira hacia el noroeste de manera de acercarse a dicha localidad.
El acceso a Cote Lai será por una prolongación de la calle 9 de Julio, que tras 350 metros hará una curva en forma de «S» para luego transponer el arroyo Palometa, a 700 metros de la avenida 2 de Abril. Luego volverá a hacer una «S» para finalmente tras 1220 metros alcanzar la RP13 a la cual se enlazará con un triángulo con 4 calzadas. Los primeros 700 metros aunque no están edificados tienen un trazado de calles incipiente, en cambio los últimos 500 son netamente rurales. Es de esperar que el eje de crecimiento se desplace hacia este lugar, con una alta demanda de servicios al ser el último lugar poblado de importancia para quienes se dirijan a las demás localidades sobre ruta 13 o 7.


Tras dicho acceso la ruta continúa 1300 metros donde se une a la traza actual.

Esta ruta es desde siempre vista como muy necesaria tanto para vincular los olvidados parajes y municipios sobre ella, como para reducir drásticamente la distancia entre Villa Ángela y la capital. Sin embargo la topografía del lugar llena de bajos y cañadas por un lado encarece la obra y por otro quita relevancia económica a la región. Las tierras en general bajas dificultan la agricultura extensiva, por otro lado la abundancia de pasto y aguadas propició la cría de ganado vacuno, actualmente la principal actividad económica de la zona. En las isletas de monte los suelos fértiles bien podrían servir para la horticultura, pero claramente las grandes distancias a recorrer por caminos eventualmente intransitables conspiran contra esa posibilidad. Aunque es menos extensa y con menor cantidad de suelos cultivables que el Impenetrable, la cercanía a la urbe capitalina juega a favor de su desarrollo, con una mayor cantidad de personas y flujos de capital disponible a una distancia accesible para emprendimientos productivos. La sola cercanía visibilizará a la región a un gran número de personas, y puede contribuir a la aparición de actividades que dependan de la ciudad pero a una distancia intermedia con costos de tierra menores, la presencia del geriátrico en Colonia Baranda ya es un ejemplo de cómo puede vincularse toda la zona económicamente con Resistencia. Esperemos que cuando culmine la obra se pueda proseguir por lo menos hasta Charadai, y desde allí que el progreso empuje a continuarla tanto hasta La Sabana por RP7 como para completar el vínculo con Villa Ángela.